Contact Us
顺辉自控阀门有限公司
咨询电话:0577-67975115
图文传真:0577-67975117
手机:13758735581
联系人:潘经理
E-mail:1906676883@qq.com
地 址:浙江省永嘉县江北街道码道工业区62号.

扫一扫 咨询沟通

详细介绍

ZHA/B型多弹簧气动薄膜执行机构是针对老式的ZMA/B型单弹簧气动薄膜执行机构存在的尺寸大、笨重、深波纹膜片不可靠等问题设计开发的新型气动薄膜执行机构,其膜盖盘、限制件等零件均采用钢板冲压成型。膜片形状较复杂,采用特殊的压制工艺,使爆破强度达22kg/cm2以上。多弹簧形式改善了弹簧制造的工艺性,有利于不同弹簧范围的组配。可调零功能则提高了线性精度。表面处理采用环氧静电粉未喷涂,具有较高牢度和耐腐蚀性。具有受力均匀、稳定性好、尺寸小,重量轻等优点。 可配带气动、电一气阀门定位器和空气过滤器等附件。还可配装ZPXS、ZDXS型轻小侧装、顶装手操机构。
作用形式
ZHA型:正作用,当信号压力增加时,阀杆部件向下移;
ZHB型:反作用,当信号压力增加时,阀杆部件向上移。
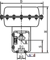
外形尺寸及重量
| 型号 | ZHA/ B-11 | ZHA/ B-22 | ZHA/ B-23 | ZHA/ B-34 | ZHA/ B-45 | ZHA/ B-56 |
| H(mm) | 220 | 270 | 300 | 375 | 490 | 720 |
| D(mm) | 236 | 285 | 285 | 360 | 470 | 620 |
| 重量(Kg) | 10 | 12 | 16 | 22 | 52 | 125 |
主要参数
| 型号 | ZHA/B-11 | ZHA/B-22 | ZHA/B-23 | ZHA/B-34 | ZHA/B-45 | ZHA/B-56 |
| 行程(mm) | 10 | 10、16 | 16、25 | 40 | 40、60 | 100 |
| 有效面积(cm) | 200 | 350 | 350 | 560 | 960 | 1600 |
| D1(mm) | 32 | 60 | 60 | 80 | 95 | 100 |
| D2(mm) | / | 80 | 80 | 105 | 122 | 130 |
| n-d | / | 2-Φ10 | 2-Φ10 | 4 -Φ12 | 4 -Φ14 | 4 -Φ18 |
| M | M8 | M8 | M8 | M12×1.25 | M16×1.5 | M20×1.5 |
| S(ZHA/ZHB)mm | 80/70 | 100/84 | 100/75 | 154/114 | 180/115 | 260/160 |
| 气源接口尺寸 | M10×1 | M12×1.25 | M16×1.5 | |||
| 气源压力 | 0.14、0.25MPa | |||||
| 环境温度 | -30~60oC | |||||
| 弹簧范围 | 0.02~0.10、0.04~0.10、0.08~0.24MPa | |||||
性能指标
| 项目 | 带定位器 | 不带定位器 |
| 基本误差% | ≤±1 | ≤±4(输出行程的百分数表示) |
| 回差% | ≤1 | ≤2.5(输出行程的百分数表示) |
| 死差% | ≤0.8 | ≤2.5(输出压力范围的百分数表示) |
| 额定行程偏差% | ±2.5 | |
| 始终点偏差% | ±0.1 | ±2.5 |
| 零位迁移量% | ±20 | |
| 薄膜耐压强度MPa | 20~24 | |
| 工作寿命 | 不少于30万次 | |
主要零件部件材料
| 零件名称 | 材料 | 零件名称 | 材料 | |
| 上、下膜盖 | 钢板 | 支架 | HT200,ZMXA/B-6OZG250-450 | |
| 波纹膜片 | 丁晴胶夹尼龙 | 轴用密封圈 | 聚氨酯(用于反作用) | |
| 平衡弹簧 | 60Si2MnA | 推杆 | 2Cr13 |